Le Cedar Creek by Vaudor

Available in Montreal, Quebec

Starting at $501,900

Builder: No builder listed for this house plan.

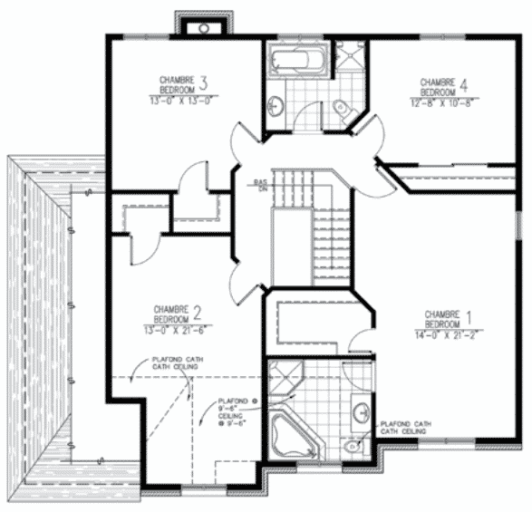
4 Beds, 2 Baths, 2 Car Garage, 2447 Sq. Ft.

Main Floor Plan:

Upper Level Floor Plan: