The Corsica by Broadview Homes

Available in Winnipeg, Manitoba

Builder: No builder listed for this house plan.

3 Beds, 2.5 Baths, 2 Car Garage, 2041 Sq. Ft.

Main Floor Plan:

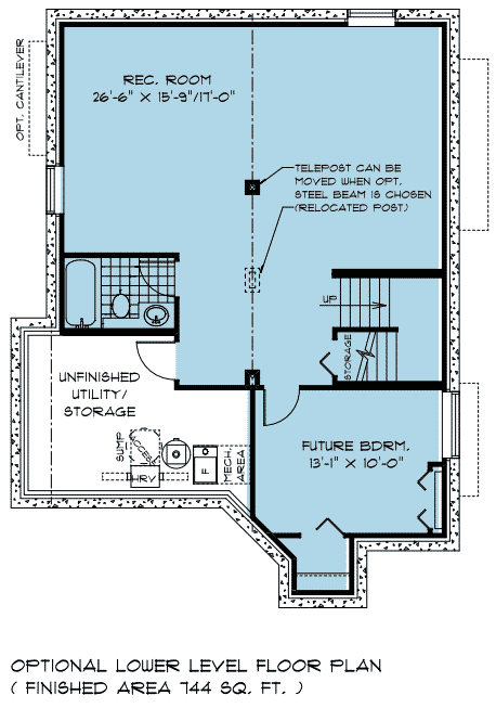
Lower Level Floor Plan:

Upper Level Floor Plan: