The Boynton by Linwood
The Boynton is designed for a lot that slopes to the back. As part of its smart layout, the garage and laundry room/mud room extend at an angle from the main part of the home.

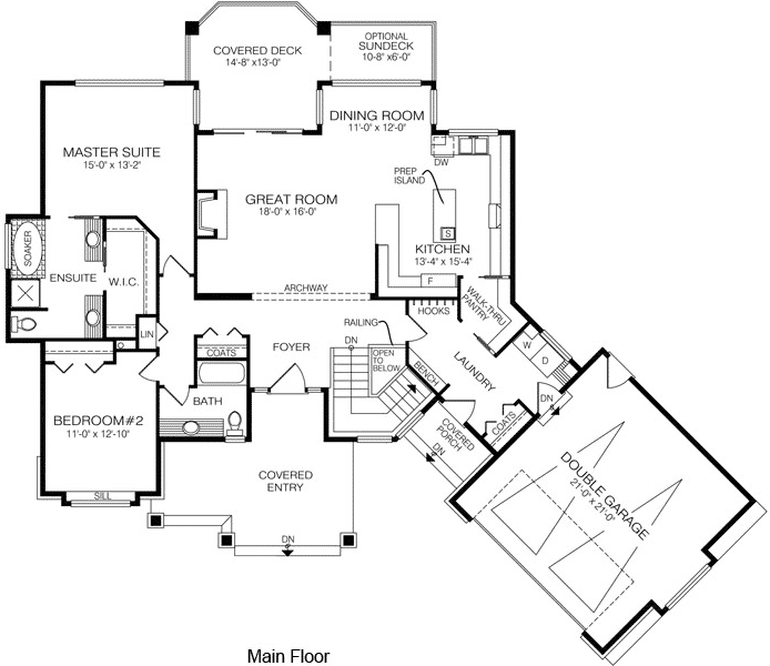
Main Floor Plan:

The Boynton is designed for a lot that slopes to the back. As part of its smart layout, the garage and laundry room/mud room extend at an angle from the main part of the home.

